Description
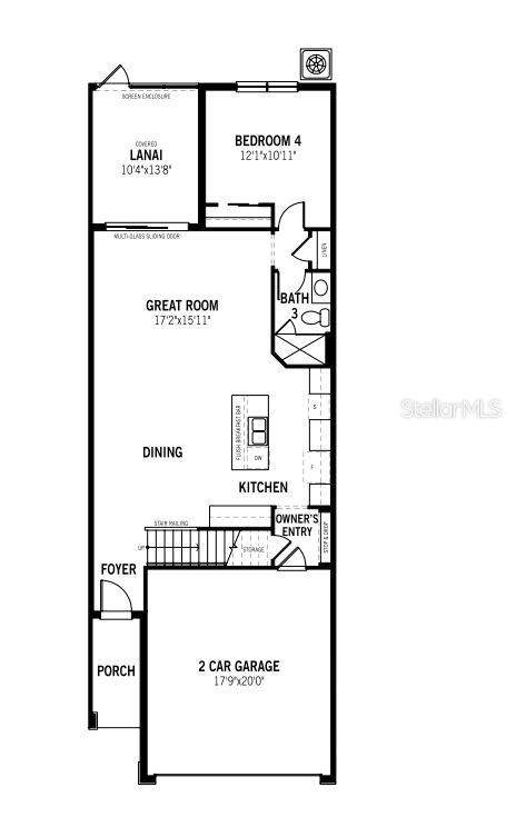
This 2,586 square foot home features 4 bedrooms, 3 baths, loft, game room, 2 car garage. The Venice is in SE Brandon bordering Valrico. This plan welcomes you into a large foyer featuring lofty ceilings plank tile floors which flows seamlessly throughout the main entertaining spaces. The open kitchen is complete with 42" Sinclair Painted White cabinets, Carrara Breve counter tops, stunning herringbone laid backsplash and stainless appliances, including the refrigerator . The cook of the home will enjoy this spacious, open kitchen, with a large center island layout which makes it ideal for entertaining or meal prep. With two walls of cabinets and countertops, there is plenty of room for kitchen gadgets galore! Just off the great room you will find a large, screen enclosed lanai with paver stones, connected by an 8' sliding glass door. This quiet area looks out over the pond, giving a tranquil space to sit and enjoy a book or a beverage. Upstairs, the owners retreat, separate from the secondary rooms by the loft and game room, offers a large walk-n closet, and a spa inspired bath oasis, with its soaking tub flanked by separate raised vanities and large glass enclosed shower on the opposite wall, providing the option for a bath on the go, or a luxurious bubble bath to soak away the day. The huge game room and loft area is a perfect spot for entertaining, studying or simply relaxing. The secondary bedrooms feature walk-in closets and share a large bathroom with double sink vanity and separate linen closet out in the hallway. The 4th bedroom is on the main floor and is adjacent to the 3rd full bath. This room is perfect to use as a guest suite or a home office. The home also features an oversized laundry room upstairs, and for added convenience you'll find a built-in stop & drop at the garage entry to keep life organized. All our homes are wired with the latest in Smart Home Technology and boast many energy efficient features like double pane lo-E, vinyl windows. Bloomingdale Townes falls into the school district of Bloomingdale High School, less than 1 mile away. Bloomingdale Townes is a gated community with a large pool and BBQ area. No CDD Fees! Photos, renderings and plans are for illustrative purposes only and should never be relied upon and may vary from the actual home. Pricing, dimensions and features can change at any time without notice or obligation. Taxes are approx as it is new construction.
-
4BEDS
-
0.05ACRES
-
3BATHS
-
01/2 BATHS
-
2,586SQFT
-
$0$/SQFT
School Information
Description
This 2,586 square foot home features 4 bedrooms, 3 baths, loft, game room, 2 car garage. The Venice is in SE Brandon bordering Valrico. This plan welcomes you into a large foyer featuring lofty ceilings plank tile floors which flows seamlessly throughout the main entertaining spaces. The open kitchen is complete with 42" Sinclair Painted White cabinets, Carrara Breve counter tops, stunning herringbone laid backsplash and stainless appliances, including the refrigerator . The cook of the home will enjoy this spacious, open kitchen, with a large center island layout which makes it ideal for entertaining or meal prep. With two walls of cabinets and countertops, there is plenty of room for kitchen gadgets galore! Just off the great room you will find a large, screen enclosed lanai with paver stones, connected by an 8' sliding glass door. This quiet area looks out over the pond, giving a tranquil space to sit and enjoy a book or a beverage. Upstairs, the owners retreat, separate from the secondary rooms by the loft and game room, offers a large walk-n closet, and a spa inspired bath oasis, with its soaking tub flanked by separate raised vanities and large glass enclosed shower on the opposite wall, providing the option for a bath on the go, or a luxurious bubble bath to soak away the day. The huge game room and loft area is a perfect spot for entertaining, studying or simply relaxing. The secondary bedrooms feature walk-in closets and share a large bathroom with double sink vanity and separate linen closet out in the hallway. The 4th bedroom is on the main floor and is adjacent to the 3rd full bath. This room is perfect to use as a guest suite or a home office. The home also features an oversized laundry room upstairs, and for added convenience you'll find a built-in stop & drop at the garage entry to keep life organized. All our homes are wired with the latest in Smart Home Technology and boast many energy efficient features like double pane lo-E, vinyl windows. Bloomingdale Townes falls into the school district of Bloomingdale High School, less than 1 mile away. Bloomingdale Townes is a gated community with a large pool and BBQ area. No CDD Fees! Photos, renderings and plans are for illustrative purposes only and should never be relied upon and may vary from the actual home. Pricing, dimensions and features can change at any time without notice or obligation. Taxes are approx as it is new construction.
Related Properties
© 2026 My Florida Regional MLS DBA Stellar MLS. All rights reserved. All listings displayed pursuant to IDX. All listing information is deemed reliable but not guaranteed and should be independently verified through personal inspection by appropriate professionals. Listings displayed on this website may be subject to prior sale or removal from sale; availability of any listing should always be independently verified. Listing information is provided for consumers personal, non-commercial use, solely to identify potential properties for potential purchase; all other use is strictly prohibited and may violate relevant federal and state law. Data last updated 2026-03-07T17:45:32.793.
