Description
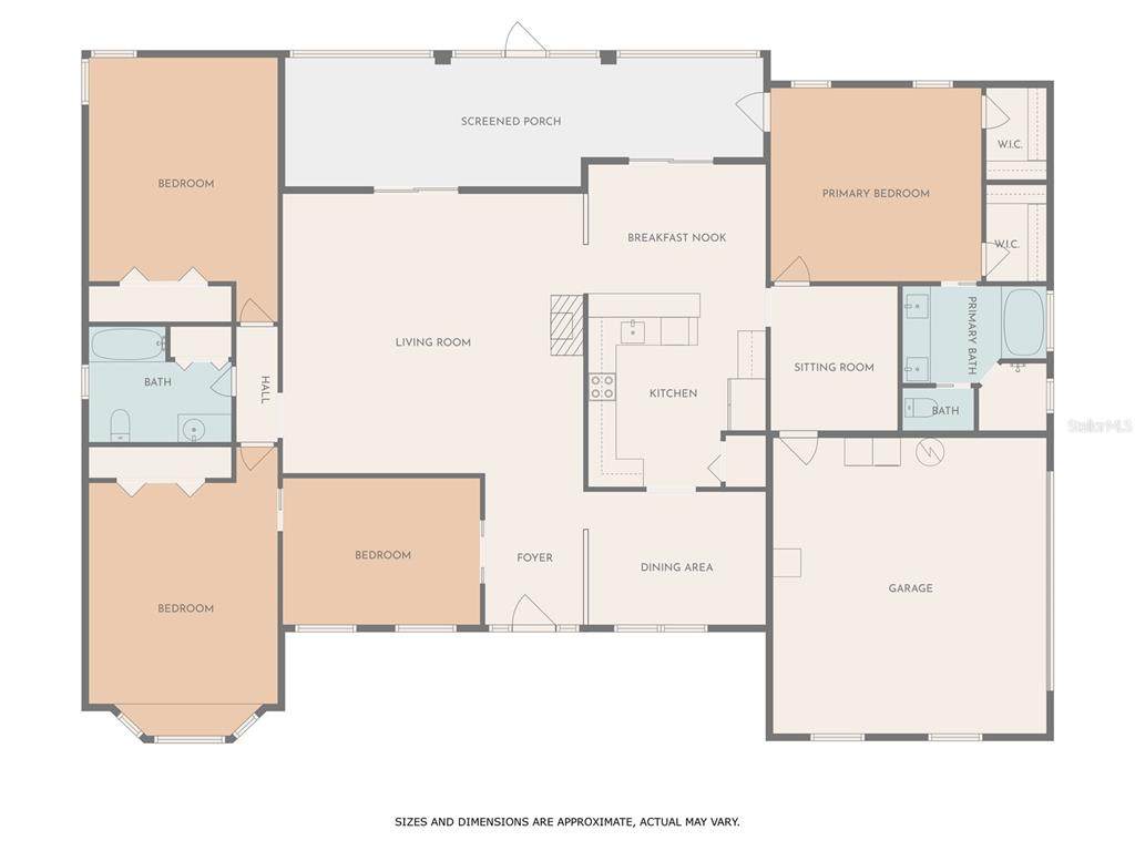
PRICED UNDER APPRAISED VALUE!!! FANTASTIC OPPORTUNITY FOR A BUYER TO WALK INTO INSTANT HOME EQUITY!!! Country Creek is one of the few communities in Bradenton that does NOT have CDD Fees, saving the Homeowner's THOUSANDS of dollars. Country Creek is a serene and well-established community in Bradenton offering the perfect blend of space, privacy, and convenience. Nestled on an expansive -acre lot, this beautifully maintained ranch-style home showcases picturesque west-facing pond viewsideal for enjoying Florida's breathtaking sunsets from your covered and screened-in back porch. Inside, you'll find over 2,200 square feet of thoughtfully designed living space with a split-bedroom floorplan, vaulted ceilings, and multiple flexible living areas. Upon entering the house, you are greeted by vaulted ceilings, the formal dining room, and a spacious living room. The enormous living room features a wood burning fireplace with brick surround and connects to the Kitchen. Off the kitchen before you reach the Primary Suite and Garage is a cozy sitting area that could double as a home office, reading nook, mud room, or so much more. The split bedroom floorplan allows for the owners to enjoy peace and tranquility on their side of the house, while the 3 auxiliary bedrooms are on the opposite side of the house. The 4th Bedroom could also serve as a large Bonus Room or Home Office space. The updated kitchen is a chef's delight, complete with granite countertops, upper cabinet lighting, a Bosch refrigerator, a breakfast nook overlooking the screened in porch, and ample cabinet space. All four bedrooms are generously sized with plenty of space for furniture and fun. The luxurious primary suite features dual walk-in closets, and a spa-like ensuite bathroom complete with dual vanities, a large soaking tub, a step-in shower, and a private water closet. Additional features include a covered front porch, 2-car garage, updated roof and HVAC, a sprinkler system using county reclaimed water, and mature landscaping with room to add a pool. The low HOA fee includes access to the community park, playground, basketball court, and covered pavilion. With sidewalks and streetlights throughout, Country Creek is a quiet, walkable neighborhood conveniently located between St. Pete, Sarasota, and Tampa. Don't miss your chance to own this peaceful retreat that offers both space and style in one of Bradenton's most desirable neighborhoods. AGE OF MAJOR MECHANICS: Roof - 2019, HVAC - 2019
-
4BEDS
-
0.51ACRES
-
2BATHS
-
01/2 BATHS
-
2,223SQFT
-
$241$/SQFT
School Information
Description
PRICED UNDER APPRAISED VALUE!!! FANTASTIC OPPORTUNITY FOR A BUYER TO WALK INTO INSTANT HOME EQUITY!!! Country Creek is one of the few communities in Bradenton that does NOT have CDD Fees, saving the Homeowner's THOUSANDS of dollars. Country Creek is a serene and well-established community in Bradenton offering the perfect blend of space, privacy, and convenience. Nestled on an expansive -acre lot, this beautifully maintained ranch-style home showcases picturesque west-facing pond viewsideal for enjoying Florida's breathtaking sunsets from your covered and screened-in back porch. Inside, you'll find over 2,200 square feet of thoughtfully designed living space with a split-bedroom floorplan, vaulted ceilings, and multiple flexible living areas. Upon entering the house, you are greeted by vaulted ceilings, the formal dining room, and a spacious living room. The enormous living room features a wood burning fireplace with brick surround and connects to the Kitchen. Off the kitchen before you reach the Primary Suite and Garage is a cozy sitting area that could double as a home office, reading nook, mud room, or so much more. The split bedroom floorplan allows for the owners to enjoy peace and tranquility on their side of the house, while the 3 auxiliary bedrooms are on the opposite side of the house. The 4th Bedroom could also serve as a large Bonus Room or Home Office space. The updated kitchen is a chef's delight, complete with granite countertops, upper cabinet lighting, a Bosch refrigerator, a breakfast nook overlooking the screened in porch, and ample cabinet space. All four bedrooms are generously sized with plenty of space for furniture and fun. The luxurious primary suite features dual walk-in closets, and a spa-like ensuite bathroom complete with dual vanities, a large soaking tub, a step-in shower, and a private water closet. Additional features include a covered front porch, 2-car garage, updated roof and HVAC, a sprinkler system using county reclaimed water, and mature landscaping with room to add a pool. The low HOA fee includes access to the community park, playground, basketball court, and covered pavilion. With sidewalks and streetlights throughout, Country Creek is a quiet, walkable neighborhood conveniently located between St. Pete, Sarasota, and Tampa. Don't miss your chance to own this peaceful retreat that offers both space and style in one of Bradenton's most desirable neighborhoods. AGE OF MAJOR MECHANICS: Roof - 2019, HVAC - 2019
Related Properties
© 2025 My Florida Regional MLS DBA Stellar MLS. All rights reserved. All listings displayed pursuant to IDX. All listing information is deemed reliable but not guaranteed and should be independently verified through personal inspection by appropriate professionals. Listings displayed on this website may be subject to prior sale or removal from sale; availability of any listing should always be independently verified. Listing information is provided for consumers personal, non-commercial use, solely to identify potential properties for potential purchase; all other use is strictly prohibited and may violate relevant federal and state law. Data last updated 2025-11-07T14:52:37.643.
