Description
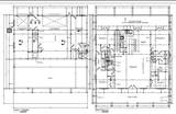
Pre-Construction. To be built. Very Rare 5 Bedroom 3 Car Garage Custom Home on Large Lot that backs up to a Conservation area. Plans are complete but can be modified depending on the change. Large Bedrooms which are seperated by the common area. Vaulted Ceiling in the common area as you enter the from the front door. Extra Large Front and Rear Porches. Master and one Guest room have French doors leading to the rear Porch. Spacious Kitchen, living room and Dinning Room. Garage is large with plenty of space for workshop. Storage area under stairs. Property is listed by Licenced Real Estate Professional. Great In-law and Multi-Generational Home
-
5BEDS
-
0.37ACRES
-
3BATHS
-
11/2 BATHS
-
2,340SQFT
-
$212$/SQFT
School Ratings & Info
Description
Pre-Construction. To be built. Very Rare 5 Bedroom 3 Car Garage Custom Home on Large Lot that backs up to a Conservation area. Plans are complete but can be modified depending on the change. Large Bedrooms which are seperated by the common area. Vaulted Ceiling in the common area as you enter the from the front door. Extra Large Front and Rear Porches. Master and one Guest room have French doors leading to the rear Porch. Spacious Kitchen, living room and Dinning Room. Garage is large with plenty of space for workshop. Storage area under stairs. Property is listed by Licenced Real Estate Professional. Great In-law and Multi-Generational Home
© 2025 My Florida Regional MLS DBA Stellar MLS. All rights reserved. All listings displayed pursuant to IDX. All listing information is deemed reliable but not guaranteed and should be independently verified through personal inspection by appropriate professionals. Listings displayed on this website may be subject to prior sale or removal from sale; availability of any listing should always be independently verified. Listing information is provided for consumers personal, non-commercial use, solely to identify potential properties for potential purchase; all other use is strictly prohibited and may violate relevant federal and state law. Data last updated 2025-11-07T14:52:37.643.
